Wyjątkowe 5 pok Kabaty 2 poz przy Lesie Kabackim



















mieszkanie • na sprzedaż • rynek wtórny • Warszawa • Ursynów • Polnej Róży
2 240 000 zł
• 191,28 m²
11 711 zł za m2
11 711 zł za m2
5 pokoi • 3 łazienki • 1 piętro • budynek 2 piętrowy • Rok budowy: 1996
Kontakt
Unikalny Dwupoziomowy Apartament przy Lesie Kabackim - Warszawa, ul. Polnej Róży
Z ogromną przyjemnością prezentujemy Państwu wyjątkową nieruchomość położoną w sercu Kabat, przy ul. Polnej Róży. To idealna propozycja dla osób szukających przestrzeni domu jednorodzinnego z wygodą miejskiego mieszkania.
LOKALIZACJA:
Mieszkanie znajduje się w jednej z najbardziej pożądanych części Ursynowa. Wyjątkowe położenie przy ul. Polnej Róży gwarantuje ciszę i kameralność, a jednocześnie zapewnia dostęp do pełnej infrastruktury miejskiej.
Zieleń na wyciągnięcie ręki: Zaledwie kilka minut spacerem dzieli Cię od wejścia do Lasu Kabackiego - idealnego miejsca na poranny jogging, rodzinne wycieczki rowerowe czy spacery z psem.
KOMUNIKACJA:
Bliskość stacji Metro Kabaty zapewnia błyskawiczne połączenie z centrum Warszawy.
Infrastruktura: W najbliższej okolicy znajdują się: szkoła podstawowa, przedszkola, sklepy, punkty usługowe i pełna infrastruktura miejska.
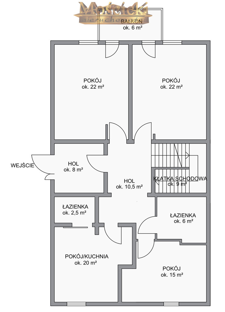
ROZDŁAD MIESZKANIA:
Apartament charakteryzuje się trójstronną ekspozycją (północ, południe, wschód), co zapewnia doskonałe doświetlenie przez cały dzień. Wysokość pomieszczeń wynosząca 270 cm potęguje poczucie przestronności.
POZIOM I:
Na pierwszym poziomie znajdziemy 3 ustawne pokoje
- Kuchnia (19,53 m²):
- Salon / Pokój 1 (21,67 m²): z wyjściem na słoneczny balkon (6,65 m²).
- Pokój 2 (21,09 m²): Idealny na sypialnię główną lub gabinet.
- Pokój 3 (15,37 m²): Ustawny pokój z bezpośrednim dostępem do prywatnej łazienki.
- Łazienka 1 (6,36 m²)
- Łazienka 2 (2,61 m²)
- Hall (10,52 m²) + Wiatrołap (8,23 m²):
Bardzo duża strefa wejściowa z szafą wnękową.
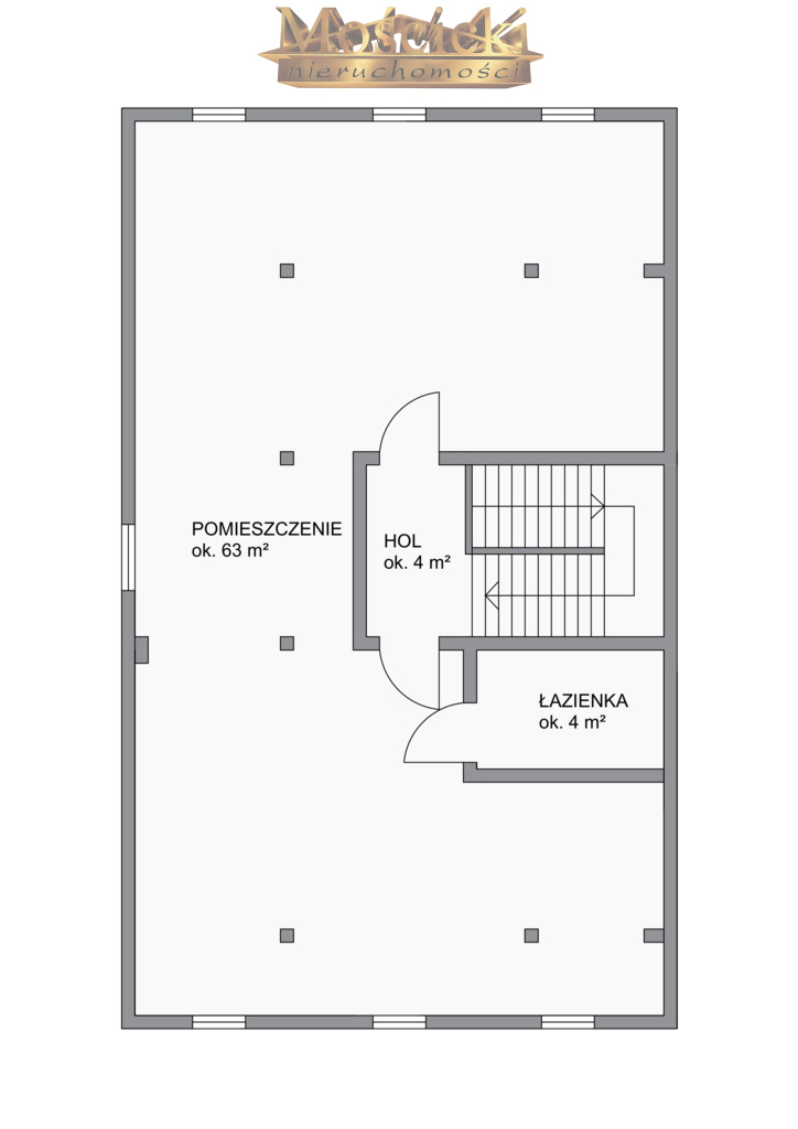
POZIOM II (Poddasze z potencjałem):
- Otwarta przestrzeń o powierzchni 67,33 m² (powierzchnia użytkowa powyżej 2,2 m, bez skosów). To miejsce o niesamowitym klimacie, wykończone w drewnie, które może pełnić funkcje:
prywatnej strefy rekreacyjnej (siłownia/kino domowe), pracowni artystycznej lub dodatkowych sypialni dla dzieci.
- Łazienka ( ok 4m2 ) z prysznicem;
- Hol ok 4m2;
Nowoczesne rozwiązania i bezpieczeństwo
Nieruchomość wyróżnia się na tle innych ofert rozwiązaniami proekologicznymi i ekonomicznymi:
Fotowoltaika: Na dachu zainstalowano panele fotowoltaiczne, które całkowicie pokrywają zapotrzebowanie na prąd, co drastycznie obniża koszty utrzymania.
Stolarka: Drewniane okna wysokiej jakości.
Prywatność: Oddzielne wejście do lokalu zapewnia komfort samodzielności.
WARUNKI ZAKUPU:
Cena mieszkania: 2 240 000 PLN
Miejsce w garażu podziemnym: 45 000 PLN
Stan prawny:
Pełna własność z Księgą Wieczystą
Możliwość zakupu na kredyt (pomagamy w formalnościach).
To mieszkanie to rzadka okazja na rynku - łączy ogromny metraż, ekologiczne rozwiązania i najlepszy adres na Kabatach.
Zapraszam na prezentację w dogodnym terminie:
Agata Sowa
tel. 608 690 888
e-mail: a.sowa@moscicki.pl
Oferta biura Mościcki Nieruchomości nieruchomości. W przypadku finalizacji transakcji pobieramy wynagrodzenie.
Oferta wysłana z programu dla biur nieruchomości ASARI CRM (asaricrm.com)
Z ogromną przyjemnością prezentujemy Państwu wyjątkową nieruchomość położoną w sercu Kabat, przy ul. Polnej Róży. To idealna propozycja dla osób szukających przestrzeni domu jednorodzinnego z wygodą miejskiego mieszkania.
LOKALIZACJA:
Mieszkanie znajduje się w jednej z najbardziej pożądanych części Ursynowa. Wyjątkowe położenie przy ul. Polnej Róży gwarantuje ciszę i kameralność, a jednocześnie zapewnia dostęp do pełnej infrastruktury miejskiej.
Zieleń na wyciągnięcie ręki: Zaledwie kilka minut spacerem dzieli Cię od wejścia do Lasu Kabackiego - idealnego miejsca na poranny jogging, rodzinne wycieczki rowerowe czy spacery z psem.
KOMUNIKACJA:
Bliskość stacji Metro Kabaty zapewnia błyskawiczne połączenie z centrum Warszawy.
Infrastruktura: W najbliższej okolicy znajdują się: szkoła podstawowa, przedszkola, sklepy, punkty usługowe i pełna infrastruktura miejska.
ROZDŁAD MIESZKANIA:
Apartament charakteryzuje się trójstronną ekspozycją (północ, południe, wschód), co zapewnia doskonałe doświetlenie przez cały dzień. Wysokość pomieszczeń wynosząca 270 cm potęguje poczucie przestronności.
POZIOM I:
Na pierwszym poziomie znajdziemy 3 ustawne pokoje
- Kuchnia (19,53 m²):
- Salon / Pokój 1 (21,67 m²): z wyjściem na słoneczny balkon (6,65 m²).
- Pokój 2 (21,09 m²): Idealny na sypialnię główną lub gabinet.
- Pokój 3 (15,37 m²): Ustawny pokój z bezpośrednim dostępem do prywatnej łazienki.
- Łazienka 1 (6,36 m²)
- Łazienka 2 (2,61 m²)
- Hall (10,52 m²) + Wiatrołap (8,23 m²):
Bardzo duża strefa wejściowa z szafą wnękową.
POZIOM II (Poddasze z potencjałem):
- Otwarta przestrzeń o powierzchni 67,33 m² (powierzchnia użytkowa powyżej 2,2 m, bez skosów). To miejsce o niesamowitym klimacie, wykończone w drewnie, które może pełnić funkcje:
prywatnej strefy rekreacyjnej (siłownia/kino domowe), pracowni artystycznej lub dodatkowych sypialni dla dzieci.
- Łazienka ( ok 4m2 ) z prysznicem;
- Hol ok 4m2;
Nowoczesne rozwiązania i bezpieczeństwo
Nieruchomość wyróżnia się na tle innych ofert rozwiązaniami proekologicznymi i ekonomicznymi:
Fotowoltaika: Na dachu zainstalowano panele fotowoltaiczne, które całkowicie pokrywają zapotrzebowanie na prąd, co drastycznie obniża koszty utrzymania.
Stolarka: Drewniane okna wysokiej jakości.
Prywatność: Oddzielne wejście do lokalu zapewnia komfort samodzielności.
WARUNKI ZAKUPU:
Cena mieszkania: 2 240 000 PLN
Miejsce w garażu podziemnym: 45 000 PLN
Stan prawny:
Pełna własność z Księgą Wieczystą
Możliwość zakupu na kredyt (pomagamy w formalnościach).
To mieszkanie to rzadka okazja na rynku - łączy ogromny metraż, ekologiczne rozwiązania i najlepszy adres na Kabatach.
Zapraszam na prezentację w dogodnym terminie:
Agata Sowa
tel. 608 690 888
e-mail: a.sowa@moscicki.pl
Oferta biura Mościcki Nieruchomości nieruchomości. W przypadku finalizacji transakcji pobieramy wynagrodzenie.
Oferta wysłana z programu dla biur nieruchomości ASARI CRM (asaricrm.com)
- powierzchnia: 191,28 m2
- piętro: 1 piętro
- liczba pięter w budynku: 2 piętrowy
- liczba pokoi: 5 pokoi
- liczba łazienek: 3 łazienki
- kuchnia: zamknięta
- rok budowy: 1996
- ogrzewanie: własne
- numer oferty: 21091/317/OMS
- data dodania: 21 Luty 2026
- data ostatniej aktualizacji: 17 Kwiecień 2026
Dane kontaktowe

Mościcki Nieruchomości
ul. Melchiora Wańkowicza 5A/lok. U302-796 Warszawa
tel: +48 22 859 18 55
tel: +48 22 859 18 54














